+917292009966 +917292006699 Whatsapp
Tasha Realty
Tata Gurgaon Gateway
 
Tata Gurgaon Gateway

Tata Gurgaon Gateway

Sector - 113, Gurgaon
sign

Contact Now:

Amenities:

Overview

Tata Gurgaon Gateway offers 3 BHK apartments in Sector-113, Gurgaon, at an affordable price range of Rs. 1.35 Cr*Onwards. Tata Gurgaon Gateway is ready to move Flats. Located in Sector 113, Gurgaon, Tata Gurgaon Gateway gives you the same freedom you have always cherished, allowing your family to transition to something better as living in that old pattern is no longer an option. will do so.

By walking a clear path, enjoying a fresh environment, and feeling confident to step into the life of your dreams, you are free to experience all these benefits and make every day your best day. Tata Gurgaon Gateway offers three of its BHK apartments in Sector 113, Gurgaon at affordable prices starting at Rs.1.35 Cr*up. Apartment is available for immediate move-in. 

Tata Gurgaon Gateway

Features:

- Imported marble flooring in living and dining areas, wooden* flooring in bedrooms.
- Weatherproof timber* flooring in sundecks.
- Jacuzzis in master bathrooms.
*Tower A- No deck flooring, master bedroom with wooden flooring, other bedrooms with tile flooring

 


Other Features:

The project includes surface and basement parking facilities for visitors and occupants Power backup and modern fire safety systems support uninterrupted business operations Professionally maintained common areas and landscaped open spaces enhance the environment The development is equipped with 24x7 security and CCTV surveillance to ensure a safe and controlled commercial space

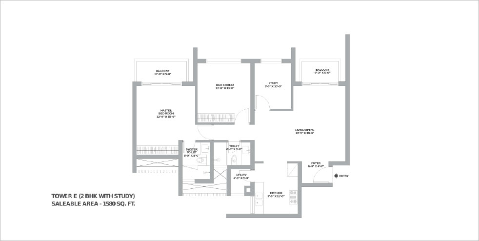
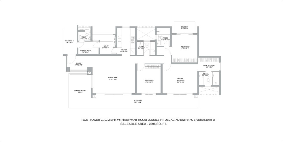
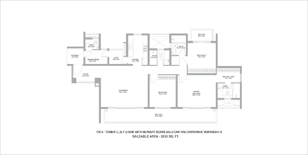
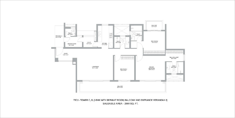
Floor Plans

Unit Type Area Price Floor Plans
2 BHK Tower E 97.57 Sq.m Not Applicable view
3 BHK L TOWER A AND B 125.96 Sq.m Not Applicable view
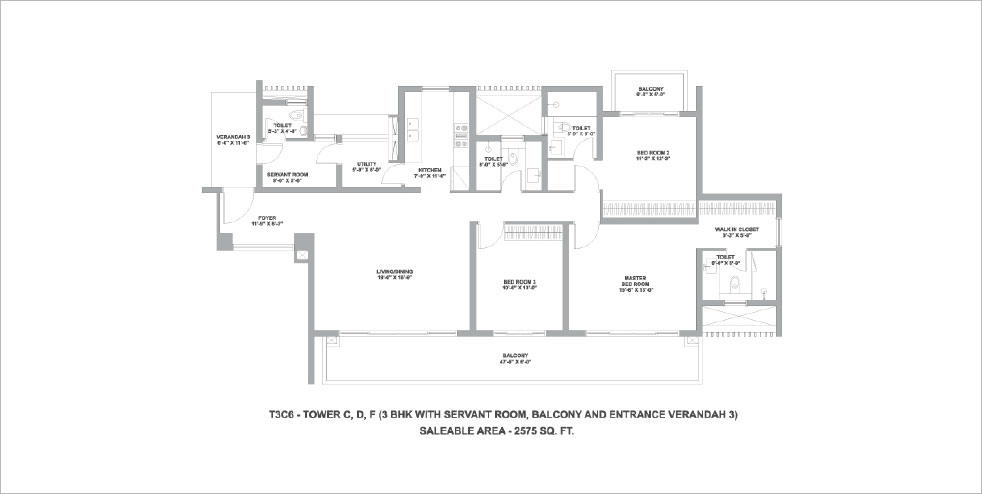
3 BHK L TOWER C, D AND F 149.30 Sq.m Not Applicable view
3 BHK L TOWER C, D AND F 148.76 Sq.m Not Applicable view
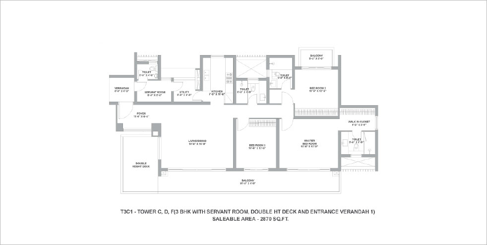
3 BHK L TOWER C AND D 146.29 Sq.m Not Applicable view
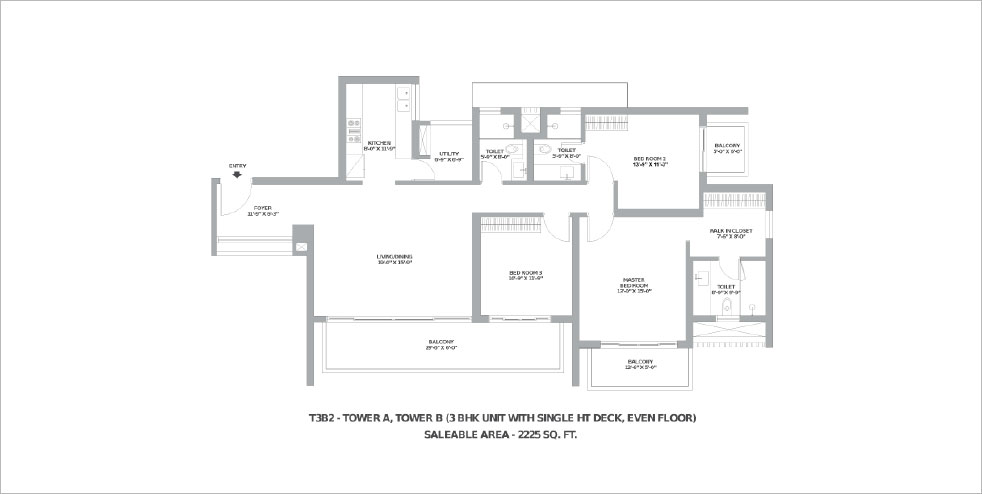
3 BHK S TOWER A AND B 122.67 Sq.m Not Applicable view
2 BHK TOWER E 125.96 Sq.m Not Applicable view
3 BHK - T3C2 TOWER C AND D 146.29 Sq.m Not Applicable view
3 BHK L TOWER C, D AND F 149.30 Sq.m Not Applicable view
3 BHK L TOWER C, D AND F 148.76 Sq.m Not Applicable view
 

About Builder:

Tata Housing Development Company was founded in 1984 by the legendary JRD Tata. The real estate giant has gone from strength to strength since 2006, evolving into an integrated company with many groundbreaking real estate projects across the country.

The company is known for providing affordable housing to economically vulnerable areas of the country. At Tata Housing Builder, our mission is to please our customers. To our customers by providing quality living spaces based on constant innovation. Known for its ethical business practices and superior building quality, the company has quickly become one of India's most sought-after real estate developers.

The striking design of their structures still amazes customers today. Her pioneering work in sustainable green development and her commitment to affordable housing has been recognized and awarded

 

Other Projects:

Tata Housing Primanti premium residential project in Sector 72 Gurugram
Tata La Vida residential project in Sector 113 Gurugram
Tata Housing Waterfront residential development
Tata Hortus apartments community
Tata Bellevue residential project

Project Location

DISCLAIMER: This website and the Information contained is in the process of being updated and the contents are under review/revision in terms of the Real Estate Regulation Act, 2016 and Rules there under (RERA), and will be reviewed from time to time. Till the time that the contents are fully updated, the same shall neither be construed to be any kind of advertisement, solicitation, marketing, Booking, offer for sale, invitation to offer within the purview of RERA and shall have no binding effect on the Company and nor constitute any offer and/or acceptance and/or contract and/or agreement and/or transaction and/or any intention thereof and/or a disclosure under any statute of any nature whatsoever. Please call to check the updated pricing, status etc. The photographs contained herein may be actual/stock/standard photography or rendered images used for the purpose and have been taken at a location other than the project site and are used to indicate a conceptual lifestyle. Actual product may vary/differ from what is indicated herein. The location info shown are indicative and selective representation of certain elements present/that may be present in and around the city/project site. No representations are made regarding existence/continuity of existence of any landmarks/locations shown. The landmarks/locations may be subject to change from time to time and such changes are completely outside our control. No representation or warranty is made or intended as to the accuracy or completeness of information under this website or as to its suitability or adequacy for any purpose. Before making a decision to purchase, you are requested to independently, either directly or through your legal/financial consultants, thoroughly verify all details/documents pertaining to the respective project as available on the respective RERA sites.The Company is not liable for any consequence of any action taken by the viewer relying only on such material/ information that is presently displayed on this website.